90平米户型装修效果图 90㎡现代混搭三室装修

时间: 09-10 来源: 啊哦网 作者: Anne
  • 手机浏览
    扫一扫 手机浏览
    推荐在WIFI环境下使用
  • 一篇关于90平米户型装修效果图 90㎡现代混搭三室装修文章分享给大家,希望大家喜欢!这里您可以看到更多关于90平米户型装修效果图 90㎡现代混搭三室装修相关的内容,快来看看吧

    90平米户型装修效果图

    ▲ 建筑面积90平,造价33万(软硬装+家具家电),入户通体白色储物柜与挂钩墙镜设计,兼具美观与实用

    90平米户型装修效果图 90㎡现代混搭三室装修

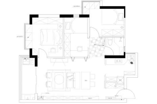
    ▲ 平面布置图

    90平米户型装修效果图 90㎡现代混搭三室装修

    ▲ 餐厅设计在入户第一眼,原木餐桌椅流露自然肌理,错落系统柜连接客厅整墙书柜,形成一体化收纳机能

    90平米户型装修效果图 90㎡现代混搭三室装修

    ▲ 客餐厅全开放式设计,扩大公领域视野,增强空间包容性,同时还保证独立功能需求

    90平米户型装修效果图 90㎡现代混搭三室装修

    ▲ 公领域空间与儿童房之间开一扇窗,折叠白色百叶让空随时切换开放与独立模式

    90平米户型装修效果图 90㎡现代混搭三室装修

    ▲ 跳脱传统客厅的布置模式,将沙发换向摆放,与餐厅长凳相依,整体温和清亮的色调让空间看起来更显简洁明快

    90平米户型装修效果图 90㎡现代混搭三室装修

    ▲ 浅色系乳胶漆墙面,整墙白色书柜作客厅背景,搭配玻璃门片,呈现轻盈,现代感

    90平米户型装修效果图 90㎡现代混搭三室装修

    ▲ 实木与真皮材料的运用增添居所质感,鹅黄色布艺沙发凸显空间活泼时尚感,白色拉槽电视背景墙包含主卧隐形门片

    90平米户型装修效果图 90㎡现代混搭三室装修

    ▲ 客厅望向餐厨视角,整体空间动线流畅

    90平米户型装修效果图 90㎡现代混搭三室装修

    ▲ 厨房地面采用六边形花砖拼贴,墙面以白色地铁瓷砖工字铺贴,深浅搭配橱柜简洁实用

    90平米户型装修效果图 90㎡现代混搭三室装修

    ▲ 客卫干湿分区,在过道自砌小花砖洗手台,别具一格

    90平米户型装修效果图 90㎡现代混搭三室装修

    ▲ 儿童房以柔和的淡紫色为基调,搭配趣味性家具与灯饰,充分表现孩子个性的生活方式

    90平米户型装修效果图 90㎡现代混搭三室装修

    ▲ 老人房白色系硬装搭配木色大床,床背景点缀两幅装饰画,给空间增添一抹自然色彩

    90平米户型装修效果图 90㎡现代混搭三室装修

    ▲ 主卧地面通铺灰色系木质地板,侧面嵌入式置顶大衣柜,床尾采光飘窗兼具抽屉收纳

    90平米户型装修效果图 90㎡现代混搭三室装修

    ▲ 卫生间花砖地面搭配白色暗花瓷砖,智能马桶享受智能生活

    相关阅读

    猜你喜欢

    prev next
    Copyright © 优美图库 版权所有 All rights reserved. 浙ICP备14043968号