35平米小户型装修 35㎡公寓这样收纳设计棒极了

时间: 09-10 来源: 啊哦网 作者: Anne
  • 手机浏览
    扫一扫 手机浏览
    推荐在WIFI环境下使用
  • 一篇关于35平米小户型装修 35㎡公寓这样收纳设计棒极了文章分享给大家,希望大家喜欢!这里您可以看到更多关于35平米小户型装修 35㎡公寓这样收纳设计棒极了相关的内容,快来看看吧

    35平米小户型装修

    今天小编给大家分享的这套案例是一款外国的单身公寓,只有35个平方,但是空间利用的非常的充足,特别是收纳设计,有着足够的空间,家有小公寓的小伙伴们,不妨看看吧~

    35平米小户型装修 35㎡公寓这样收纳设计棒极了

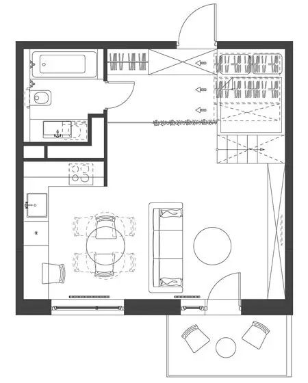
    户型图

    35平米小户型装修 35㎡公寓这样收纳设计棒极了

    入户玄关,做了非常多的柜子,而且把卧室的下方,全部利用在了玄关处做鞋柜。

    35平米小户型装修 35㎡公寓这样收纳设计棒极了

    再过来就是客厅,客厅的家居都比较小巧,电视背景墙是收纳的设计,没有一丝空间的浪费。

    35平米小户型装修 35㎡公寓这样收纳设计棒极了

    换个角度看客厅电视背景墙。

    35平米小户型装修 35㎡公寓这样收纳设计棒极了

    卧室利用层高,做了个小楼梯,只用窗帘和客厅分隔开。

    35平米小户型装修 35㎡公寓这样收纳设计棒极了

    原木的卧室,衣柜等都移到了玄关处的柜子收纳。

    35平米小户型装修 35㎡公寓这样收纳设计棒极了

    小餐厅,在客厅的边上。

    35平米小户型装修 35㎡公寓这样收纳设计棒极了

    开放式的厨房应该是外国最常见的设计了,毕竟他们做菜没有重油烟。

    35平米小户型装修 35㎡公寓这样收纳设计棒极了

    在餐厨的边角,还开辟了一个小书房,方便业主在家工作。

    35平米小户型装修 35㎡公寓这样收纳设计棒极了

    卫浴采用了浴缸和淋浴结合的设计,中间还可以挂个浴帘来防止水乱溅。

    相关阅读

    猜你喜欢

    prev next
    Copyright © 优美图库 版权所有 All rights reserved. 浙ICP备14043968号