29平米小户型装修 29㎡小公寓装修设计欣赏

时间: 09-10 来源: 啊哦网 作者: Anne
  • 手机浏览
    扫一扫 手机浏览
    推荐在WIFI环境下使用
  • 一篇关于29平米小户型装修 29㎡小公寓装修设计欣赏文章分享给大家,希望大家喜欢!这里您可以看到更多关于29平米小户型装修 29㎡小公寓装修设计欣赏相关的内容,快来看看吧

    29平米小户型装修

    小公寓的设计灵感是最有趣的,用一个巧妙的方式来计划小空间的紧凑布局,甚至在一个小空间里计划多种用途。这两个不到30平米的公寓,充分利用有限的空间与创意的多功能家具,简单的装饰。一个公寓采用明亮的风格,另一个则拥抱黑暗的吸引力和腾空的布局。两种风格都适用于小空间!

    29平米小户型装修 29㎡小公寓装修设计欣赏

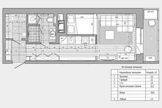
    公寓只有29平方米的面积。它的设计理念在于让一个年轻的女人拥有一个工作室的自由空间,同时也分开家庭的隐私。

    29平米小户型装修 29㎡小公寓装修设计欣赏

    29平米小户型装修 29㎡小公寓装修设计欣赏

    自然焦点在中间内部,唯一彩色抢眼是钴蓝色地毯和一些赤土色的色块。

    29平米小户型装修 29㎡小公寓装修设计欣赏

    29平米小户型装修 29㎡小公寓装修设计欣赏

    聪明的空间风格,使不同的生活空间,厨房,卧室没有妥协开放的感觉。

    29平米小户型装修 29㎡小公寓装修设计欣赏

    从厨房到入口通道的走廊:一侧使用木材,另一侧是白色的橱柜,表示两侧不同的功能空间。

    29平米小户型装修 29㎡小公寓装修设计欣赏

    29平米小户型装修 29㎡小公寓装修设计欣赏

    29平米小户型装修 29㎡小公寓装修设计欣赏

    29平米小户型装修 29㎡小公寓装修设计欣赏

    相关阅读

    猜你喜欢

    prev next
    Copyright © 优美图库 版权所有 All rights reserved. 浙ICP备14043968号