83平米房子装修效果图 83㎡现代感居家装修设计

时间: 09-10 来源: 啊哦网 作者: Anne
  • 手机浏览
    扫一扫 手机浏览
    推荐在WIFI环境下使用
  • 一篇关于83平米房子装修效果图 83㎡现代感居家装修设计文章分享给大家,希望大家喜欢!这里您可以看到更多关于83平米房子装修效果图 83㎡现代感居家装修设计相关的内容,快来看看吧

    83平米房子装修效果图

    在家中不同空间使用同色系能迅速为整体风格定调,但有时候最喜欢的亮色不见得能用在每个地方。无隔间规划使动线更单纯流畅,并为有小孩的夫妻设计充足收纳,方便储藏大量生活用品,营造出风格清爽、功能完整的现代感居家。

    83平米房子装修效果图 83㎡现代感居家装修设计

    83平米房子装修效果图 83㎡现代感居家装修设计

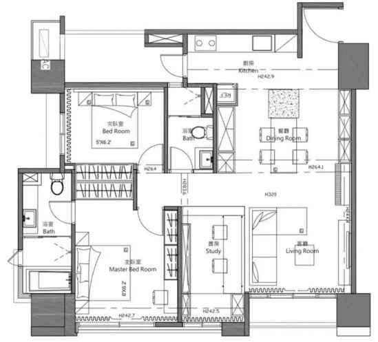
    室内面积83平左右,一家三口住,设计师运用不同层次的同色系串接居家空间,给人自由放松的感受,入户米色与木色的系统柜,局部留空装射灯作置物布景台面,丰富立面内容。

    83平米房子装修效果图 83㎡现代感居家装修设计

    83平米房子装修效果图 83㎡现代感居家装修设计

    厨房设计与餐桌相连的中岛流理台,除了增加料理空间外也有延伸吧台的效果,中岛内并设计下掀式收纳,能放置电磁炉等厨房电子用品,方便爱下厨的先生随时发挥手艺。

    83平米房子装修效果图 83㎡现代感居家装修设计

    83平米房子装修效果图 83㎡现代感居家装修设计

    一张香杉木台面的餐桌,质地细密,色泽温润,暖色系的桌板和玫瑰金的吊灯,构成温馨时尚的就餐空间。

    83平米房子装修效果图 83㎡现代感居家装修设计

    从餐厅望向客厅,地面通铺木质地板,极简的顶面设计装一盏轻薄的吸顶灯,不影响空间层高。

    83平米房子装修效果图 83㎡现代感居家装修设计

    83平米房子装修效果图 83㎡现代感居家装修设计

    电视主墙使用让人感觉放松的土耳其蓝烤漆,奠定了家中主要色系。墙面造型象征开枝散叶的树木,利落的直线充满几何感。

    83平米房子装修效果图 83㎡现代感居家装修设计

    与电视背景同色系的沙发,造型简约,与整体空间的格调相协调,沙发后方为开放式书房,在层架顶面正好放置投影仪,以满足业主想要家庭影院的需求。

    83平米房子装修效果图 83㎡现代感居家装修设计

    83平米房子装修效果图 83㎡现代感居家装修设计

    83平米房子装修效果图 83㎡现代感居家装修设计

    从开放式书房望向客厅区域,无间隔规划使空间动线更加单纯流畅,并营造出风格清爽,机能完整的现代居家感。

    83平米房子装修效果图 83㎡现代感居家装修设计

    开放式书房以木色为基调,铁件悬挂式书桌与层板的设计,有效的利用了空间的同时也作功能性隔断使用,书房架高后不仅能做出空间区隔,还能结合木作打造屋主最想要的地面收纳,放置小孩杂物和玩具。

    83平米房子装修效果图 83㎡现代感居家装修设计

    靠窗位置设计为迷你卧榻,可以在此眺望家旁的火车站风景,是享受阳光、发呆的好所在。

    83平米房子装修效果图 83㎡现代感居家装修设计

    厨房,餐厅,客厅一直延续至书房,完全流畅的动线,让你在书房休闲工作的同时,可以毫无障碍的与家人进行互动。

    83平米房子装修效果图 83㎡现代感居家装修设计

    83平米房子装修效果图 83㎡现代感居家装修设计

    主卧采用浅湖水蓝色乳胶漆作床背景,和客厅色调一致但更显温和,点缀几幅照片营造温馨浪漫的就寝氛围。

    83平米房子装修效果图 83㎡现代感居家装修设计83平米房子装修效果图 83㎡现代感居家装修设计

    天花板,系统柜以及百叶窗皆选用墙上的白色,系统柜的装饰线板门片带出些许乡村风情,同时增加空间的储物功能,打造出明亮舒适又实用的卧室空间。

    83平米房子装修效果图 83㎡现代感居家装修设计

    83平米房子装修效果图 83㎡现代感居家装修设计

    相关阅读

    猜你喜欢

    prev next
    Copyright © 优美图库 版权所有 All rights reserved. 浙ICP备14043968号