三室一厅的装修效果图 三室一厅现代风装修设计

时间: 09-10 来源: 啊哦网 作者: Anne
  • 手机浏览
    扫一扫 手机浏览
    推荐在WIFI环境下使用
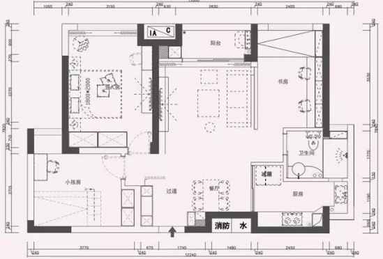
  • 一篇关于三室一厅的装修效果图 三室一厅现代风装修设计文章分享给大家,希望大家喜欢!这里您可以看到更多关于三室一厅的装修效果图 三室一厅现代风装修设计相关的内容,快来看看吧

    三室一厅的装修效果图

    三室一厅的装修效果图 三室一厅现代风装修设计

    做成的半高隔墙与原承重梁用木饰面包裹起来,在空间上得到了视觉上的延伸,两个空间的光源相互通融交汇。

    三室一厅的装修效果图 三室一厅现代风装修设计

    半高的隔墙并不是很生硬的将每个空间划分开来,而是隔中有连接,断中有连续,形成了清爽简洁干净的居住空间。

    三室一厅的装修效果图 三室一厅现代风装修设计

    白色的餐椅与原木色的餐桌相搭配,现代与自然的元素相结合,利用进门的小空间做成内嵌的小酒柜,满足功能的同时也不失格调。

    三室一厅的装修效果图 三室一厅现代风装修设计

    吊灯、装饰画、摆设品,每一处都是风景。

    三室一厅的装修效果图 三室一厅现代风装修设计

    入户鞋柜,功能齐全,收纳专家

    三室一厅的装修效果图 三室一厅现代风装修设计

    伴着白色蜡烛与花束,更显明朗与温暖。

    三室一厅的装修效果图 三室一厅现代风装修设计

    客厅中延续北欧风格,去除多余的装饰,每一件家具,每一处软装都可以带来色彩。

    三室一厅的装修效果图 三室一厅现代风装修设计

    小户型的客餐厅一体效果,视觉更为开阔,动线流畅,色彩、材质元素融入整个家居空间,更加具有整体感。

    三室一厅的装修效果图 三室一厅现代风装修设计

    客厅望向餐厅的方向,便可看到整个宜人居家的小天地,设计师以文艺白与原木色作为空间主导,以蓝、黄为空间调色,清爽简洁又颇有质感。

    三室一厅的装修效果图 三室一厅现代风装修设计

    阳台黑色边框玻璃格子推拉门,不仅使阳台看起来通透,而且增加了客厅的采光与通风。

    三室一厅的装修效果图 三室一厅现代风装修设计

    坐在这样一款的微笑椅上与家人淡笑,好不惬意。

    三室一厅的装修效果图 三室一厅现代风装修设计

    阳台拆除原本厚重的墙体,且利用厚墙与推拉门之间凹进去的空间,做了一组收纳柜,小小阳台精心的设计。

    三室一厅的装修效果图 三室一厅现代风装修设计

    精心挑选的沙发边几,实用且不占空间。

    三室一厅的装修效果图 三室一厅现代风装修设计

    简易的置物架上搁上一盆小绿萝,将室内外的气息很好的衔接起来。

    三室一厅的装修效果图 三室一厅现代风装修设计

    一束阳光、一段美妙的乐曲、一个周末于一隅。

    三室一厅的装修效果图 三室一厅现代风装修设计

    阳光正好的午后,一个人,读一本书

    三室一厅的装修效果图 三室一厅现代风装修设计

    主卧以浅色、原木色为主调,再以透过大面积的窗户的自然光为点缀,精致个性的小壁灯给空间带来了活泼感。

    三室一厅的装修效果图 三室一厅现代风装修设计

    整体感觉舒适、阳光。

    三室一厅的装修效果图 三室一厅现代风装修设计

    床边的小书桌,精致的摆饰品,看到一半的书本。给生活加点趣味

    三室一厅的装修效果图 三室一厅现代风装修设计

    利用设备平台的空间将厨房扩大,满足了主人烹饪时对操作台面的需求,同时铺贴白色的墙砖使得空间更为明亮。

    三室一厅的装修效果图 三室一厅现代风装修设计

    相关阅读

    猜你喜欢

    prev next
    Copyright © 优美图库 版权所有 All rights reserved. 浙ICP备14043968号