125平房子装修效果图 125㎡精致复古美式装修设计

时间: 09-10 来源: 啊哦网 作者: Anne
  • 手机浏览
    扫一扫 手机浏览
    推荐在WIFI环境下使用
  • 一篇关于125平房子装修效果图 125㎡精致复古美式装修设计文章分享给大家,希望大家喜欢!这里您可以看到更多关于125平房子装修效果图 125㎡精致复古美式装修设计相关的内容,快来看看吧

    125平房子装修效果图

    ▲ 建筑面积125平,造价35万(软硬装+家具家电),设计师将美学与经典相融合,创造浪漫复古却又不失时尚的美式休闲空间

    125平房子装修效果图 125㎡精致复古美式装修设计

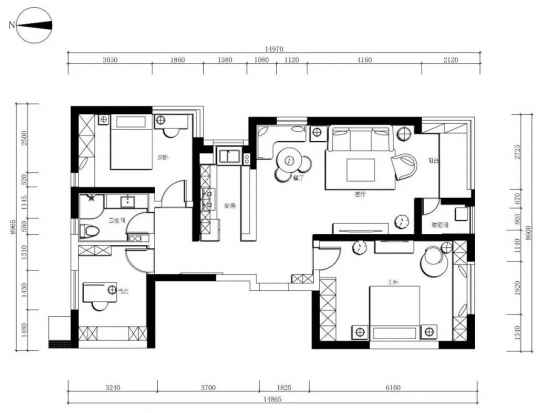
    ▲ 平面布置图

    125平房子装修效果图 125㎡精致复古美式装修设计

    ▲ 客厅人字铺木质地板,搭配简洁吊顶与柔和墙面,白色护墙板让空间更显精致,大幅抽象画的金色元素呼应空间中的金属家具

    125平房子装修效果图 125㎡精致复古美式装修设计

    ▲ 暖棕色皮质沙发,奶咖布艺单椅,搭配一盏深色简约款落地灯,细节彰显品质

    125平房子装修效果图 125㎡精致复古美式装修设计

    ▲ 天然石材面圆弧茶几,结合金色铁件框架,空间布置花束与水果,营造浪漫和谐氛围

    125平房子装修效果图 125㎡精致复古美式装修设计

    ▲ 雾霾蓝电视墙设计成简约壁炉造型,呼应整体风格,搭配一张深色实木电视柜,协调空间用色,客餐厅互通设计让视野与动线开阔自由

    125平房子装修效果图 125㎡精致复古美式装修设计

    ▲ 客餐厅以各自的功能性家具作区域分割,卡座餐厅提高空间使用率,暖棕色与金色元素贯穿公领域,营造温暖浪漫氛围

    125平房子装修效果图 125㎡精致复古美式装修设计

    ▲ 书房地面延续木质地板人字铺贴,墙面铺贴竖条纹墙纸,拉伸视觉层高,美式书桌椅做工细致,组装书柜背景墙满足收纳与展示功能

    125平房子装修效果图 125㎡精致复古美式装修设计

    ▲ 暖色调装饰画提亮书房空间

    125平房子装修效果图 125㎡精致复古美式装修设计

    ▲ 主卧人字铺木质地板,复古且赋质感,简约吊顶张一盏独活树吊灯,提升整体颜值,结合飘窗对称设计两组书柜,满足主卧储物需求

    125平房子装修效果图 125㎡精致复古美式装修设计

    ▲ 蓝色软包,银色床头柜,香槟色拉伸质感台灯,搭配柔和色乳胶漆墙面,打造静谧舒适的就寝环境

    125平房子装修效果图 125㎡精致复古美式装修设计

    ▲ 圆形地毯,玫瑰金摇椅搭配软垫,结合边上飘窗,为主卧增添休闲一隅

    125平房子装修效果图 125㎡精致复古美式装修设计

    ▲ 卫生间采用浅色调瓷砖铺贴出护墙板效果,搭配复古花砖,呈现清新质感,经典款坐便器,成品台盆柜,宝石型墙镜,呼应整体复古风格

    相关阅读

    猜你喜欢

    prev next
    Copyright © 优美图库 版权所有 All rights reserved. 浙ICP备14043968号